
產品詳細
產品型號說明
聯軸器的編號由五段組成,例如:

A段:表示聯軸器特征,由字母組成
B段:表示聯軸器型號的編號
C段:表示主、從動機軸端配合軸徑和長度,字母含義如下表
|
字母 |
含義(GB3852) |
字母 |
含義(GB3852) |
|
Y J J1 Z Z1 |
Y型-長圓柱形軸孔 J型-有沉孔的短圓柱形軸孔 J1型-無沉孔的短圓柱形軸孔 Z型-有沉孔的圓錐形軸孔 Z1型-無沉孔的圓錐形軸孔 |
A B B1 C D |
A型-平鍵單鍵槽 B型-120o布置平鍵雙鍵槽 B1型-180o布置平鍵雙鍵槽 C型-圓錐形軸孔平鍵單鍵槽 D型-圓柱形軸孔普通切向鍵鍵槽 |
D段:表示主從動機軸端間距離
E 段:表示該聯軸器設計號(或用戶機組號)
結構特點
TGS高速鼓形齒聯軸器是由齒數相同的內齒圈和帶外齒的半聯軸器及中間軸等零件組成,通過特殊的結構設計和改進的鼓形齒齒形設計,以及在加工精度及動平衡等級上的嚴格要求,能夠滿足在傳動領域上高轉速工況下的動態特性要求。
鼓形齒聯軸器在工作時,兩周產生相對角位移,內外齒的齒面周期性作軸向相對滑動,必然形成齒面磨損和功率損耗,因此,鼓形齒聯軸器需在有良好潤滑和密封的狀態下工作。對于較高轉速的工況,建議采用稀油潤滑的方式強制潤滑,有利于熱量的擴散,降低齒面溫度,提供齒的使用壽命,推薦安裝天碩公司數據表中的*低潤滑油量提供潤滑油。
應用范圍
鼓形齒聯軸器是機械工業基礎件之一,多用于重載,要求效率高以及兩聯軸器有較大調整誤差和擺角的傳動中,鼓形齒聯軸器在生產實踐中愈來愈被人們所重視,它可以補償兩連接軸因軸線不重合而形成的角度,軸向和徑向安裝誤差,允許兩個軸有一定的位移。其轉動方向可以為順時鐘,也可以為逆時針,它可以水平方向傳動,也可以在特殊結構下垂直傳動,在一般機器制造業中具有較大的優點,特別是在下列條件下尤其顯得優越:間歇運動的機械;傳動負荷較大的機械;兩聯接軸有較大的調整誤差等等?;谏鲜鎏攸c,鼓形齒聯軸器被廣泛用于冶金、礦山、軋鋼等行業,對于高速鼓形齒聯軸器,還可以應用于燃氣輪機的軸系傳動等。
許用補償量
當兩軸線無徑向位移時,許用角向補償量Δα
1、聯軸器每一對內外齒嚙合許用角向補償量Δα=1o30’
2、聯軸器兩對內外齒嚙合許用角向補償量2Δα=2x1o30’=3o
當兩軸線無角向位移時,許用徑向補償量Δy ,見下表
|
聯軸器型號 |
TGS4 |
TGS5 |
TGS6 |
TGS7 |
TGS8 |
TGS9 |
|
許用徑向補償量Δy |
1.0 |
1.1 |
1.4 |
1.5 |
1.7 |
1.8 |
|
聯軸器型號 |
TGS10 |
TGS11 |
TGS12 |
TGS13 |
TGS14 |
TGS15 |
|
許用徑向補償量Δy |
2.0 |
2.1 |
2.3 |
2.6 |
4.5 |
4.8 |
|
聯軸器型號 |
TGS16 |
TGS17 |
TGS18 |
TGS19 |
TGS20 |
TGS21 |
|
許用徑向補償量Δy |
5.3 |
5.4 |
5.8 |
6 |
6.4 |
6.6 |
|
聯軸器型號 |
TGS22 |
TGS23 |
TGS24 |
TGS25 |
TGS26 |
TGS27 |
|
許用徑向補償量Δy |
6.8 |
8.0 |
8.4 |
8.5 |
8.7 |
8.8 |

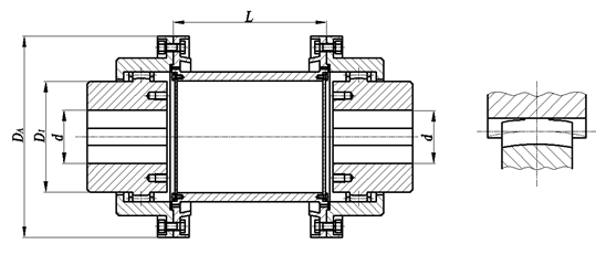
TGS高速鼓形齒聯軸器主要尺寸
|
型號 |
公稱轉矩 kNm |
轉速 rpm |
軸徑d mm |
DA mm |
D1 mm |
Lmin mm |
潤滑油量 Q/min |
|
TGS4 |
4.5 |
6150 |
30~80 |
215 |
110 |
100 |
24 |
|
TGS5 |
7.1 |
5400 |
35~90 |
245 |
125 |
105 |
33 |
|
TGS6 |
10 |
4540 |
40~100 |
275 |
140 |
115 |
39 |
|
TGS7 |
14 |
3960 |
50~110 |
295 |
155 |
120 |
48 |
|
TGS8 |
20 |
3580 |
55~125 |
325 |
175 |
135 |
61 |
|
TGS9 |
25 |
3210 |
65~140 |
350 |
196 |
155 |
69 |
|
TGS10 |
40 |
2930 |
75~160 |
395 |
224 |
155 |
101 |
|
TGS11 |
56 |
2590 |
85~180 |
430 |
252 |
175 |
125 |
|
TGS12 |
80 |
2320 |
120~200 |
480 |
280 |
205 |
159 |
|
TGS13 |
112 |
2060 |
140~220 |
520 |
308 |
205 |
198 |
|
TGS14 |
16 |
1830 |
160~260 |
585 |
364 |
240 |
251 |
|
TGS15 |
224 |
1740 |
160~280 |
630 |
392 |
240 |
335 |
|
TGS16 |
280 |
1610 |
180~300 |
685 |
420 |
260 |
387 |
|
TGS17 |
355 |
1520 |
200~320 |
730 |
448 |
280 |
463 |
|
TGS18 |
450 |
1350 |
220~360 |
785 |
504 |
300 |
522 |
|
TGS19 |
560 |
1260 |
240~380 |
840 |
532 |
350 |
605 |
|
TGS20 |
710 |
1150 |
260~400 |
890 |
560 |
350 |
701 |
|
TGS21 |
800 |
1070 |
280~440 |
935 |
616 |
350 |
735 |
|
TGS22 |
900 |
1010 |
320~460 |
975 |
644 |
400 |
781 |
|
TGS23 |
1000 |
960 |
360~500 |
1015 |
700 |
400 |
824 |
|
TGS24 |
1250 |
890 |
380~520 |
1065 |
728 |
400 |
955 |
|
TGS25 |
1550 |
830 |
400~540 |
1145 |
756 |
450 |
1105 |
|
TGS26 |
1850 |
770 |
440~580 |
1195 |
812 |
450 |
1223 |
|
TGS27 |
2150 |
710 |
460~600 |
1240 |
840 |
450 |
1311 |

